CAD-tekenwerk
Het voordeel van ons CAD-tekenwerk is de combinatie met PICOS FTF software.
-
Crampas Engineering gebruikt software van PICOS GmbH, deze software, PICOS FTF, is speciaal ingericht voor heroal profielsystemen.
PICOS FTF (Fenster, Türen, Fassade) maakt zeer nauwkeurige calculatie's van projecten met overzichtelijke kostengroepen en zorgt voor een concurrerende, onderbouwde verkoopprijs.
-
Door de combinatie van CAD+PICOS FTF ontstaan tekeningen, bestel-en zaagstaten met duidelijke details waardoor een project beter, foutlozer en efficiënter uitgevoerd wordt.
- Niet alleen "kaal" tekenwerk maar gecombineerd met productiezaagstaten, bestellijsten en calculatie tot op "schroefjes-nivo".
- Kosten- en tijdbesparend, zodat u zich kunt richten op verkoop / aquisitie en uitvoering, wij regelen het buro-traject.
- Efficiënter productieproces.
- Uw logo op onze tekeningen (in tegenstelling tot de getoonde voorbeelden).
CAD tekenwerk .
Crampas Engineering maakt ook traditioneel CAD tekenwerk zowel in 2D als in 3D
Onze software stelt ons in staat om bouwkundig detailtekenwerk en bestektekeningen te leveren die voldoen aan de eisen voor omgevingsvergunningen.
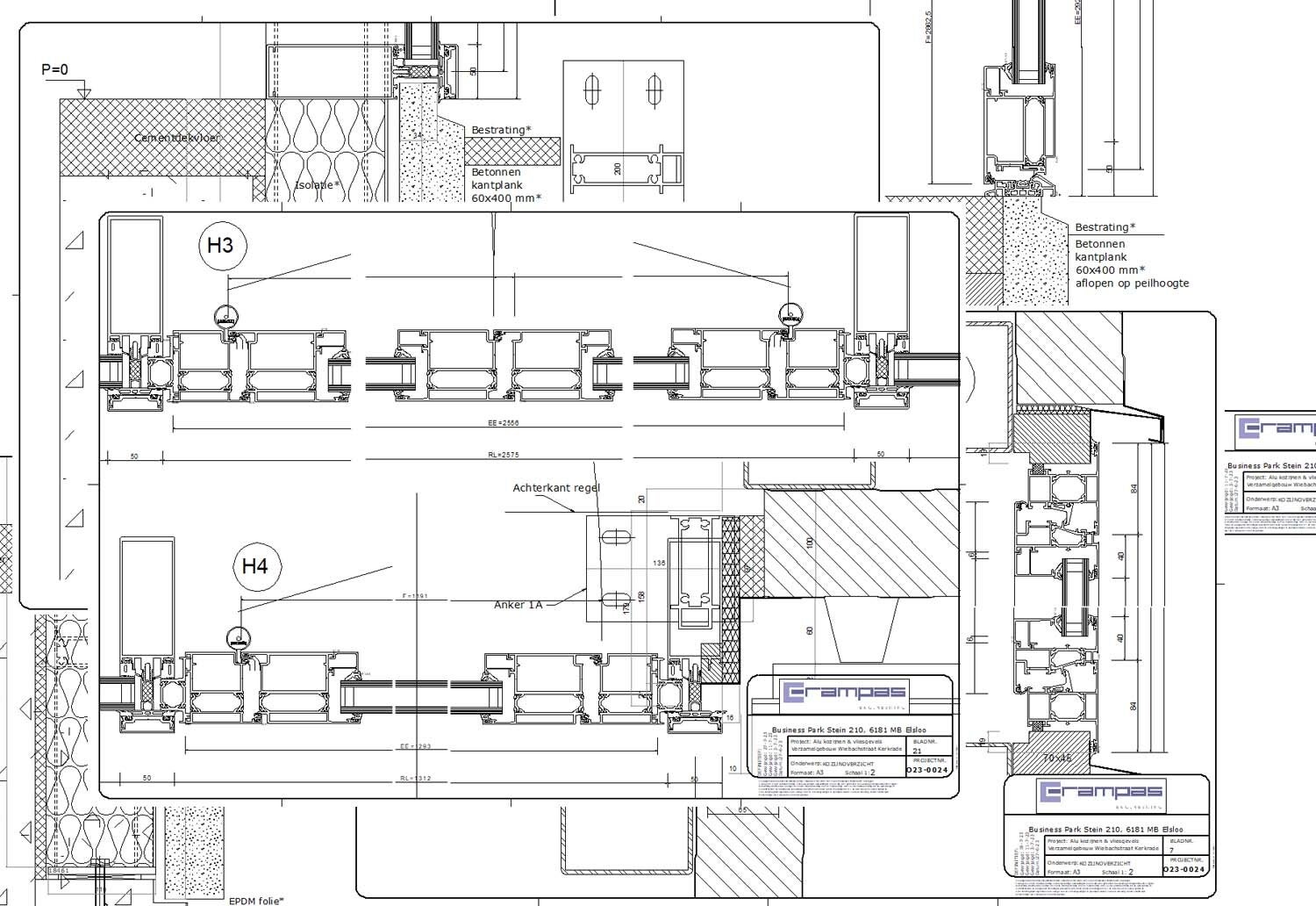
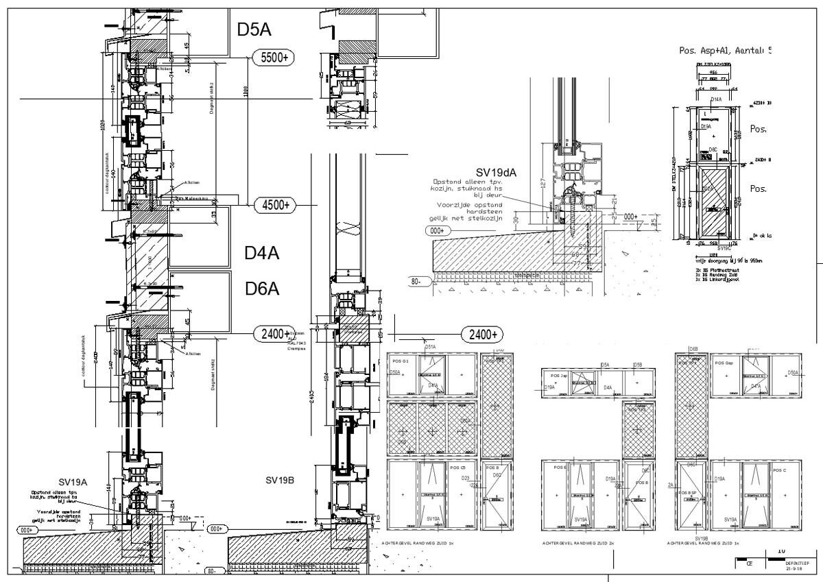
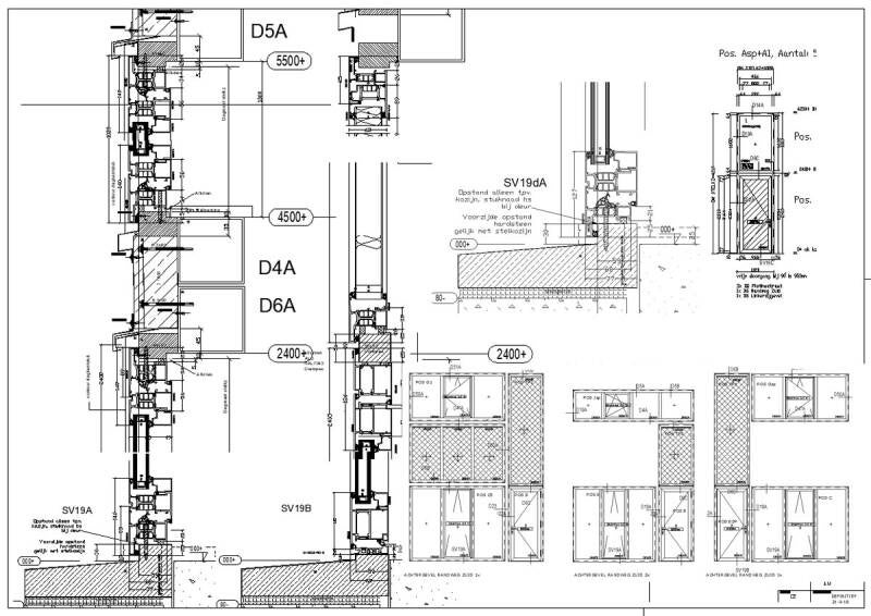
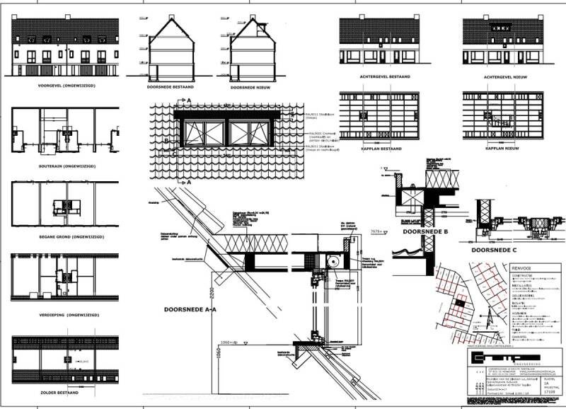
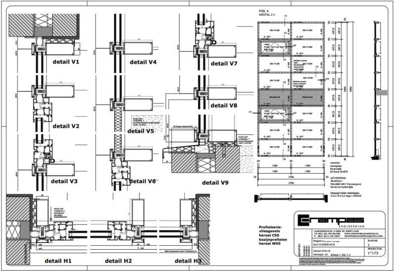
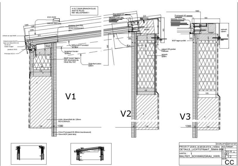
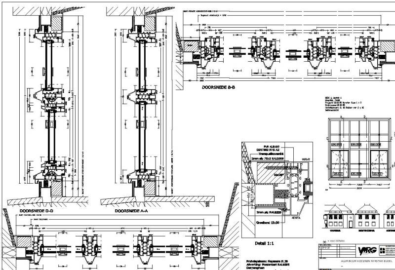
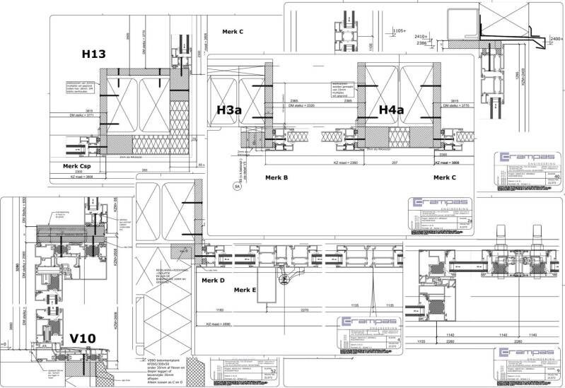
Een paar voorbeelden van gerealiseerde projecten:


Ervaar de voordelen van onze CAD-tekenwerk diensten
Of u nu op zoek bent naar snellere productieprocessen, nauwkeurige tekeningen, of geoptimaliseerde zaagstaten, bij Crampas Engineering staan wij klaar om u te ondersteunen. Neem gerust contact met ons op om uw projectplannen te bespreken.