12-11-24 Actuele versie PICOS FTF V10.7.0 (/P Plus)
PICOS FTF dé software voor aluminium ramen, deuren , vliesgevels en terrasoverkappingen in de profielserie's van heroal.
PICOS FTF is software uit Lahr (Duitsland) en bevat de profielsystemen van heroal, welke garant staat voor degelijkheid en kwaliteit.
Kenmerkend van de software is dat het snel aan te leren is, de vrijheid van invoer en vooral het snelle resultaat.
Gebruikers van PICOS FTF maken zeer snel professionele kozijntekeningen, die weer zorgen voor duidelijke en overzichtelijke productielijsten.
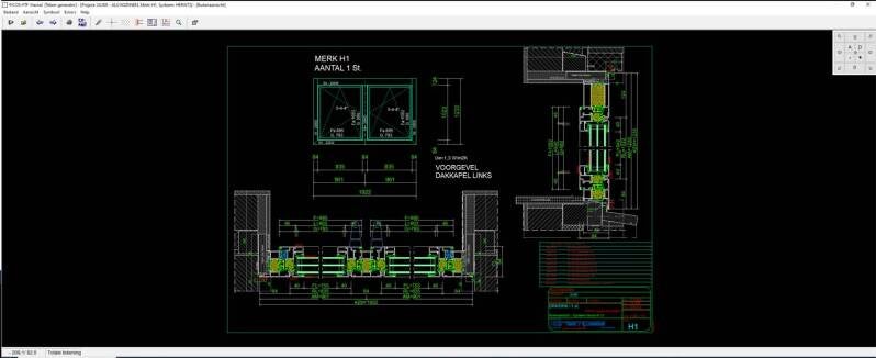
Hieronder een aantal printscreens met mogelijkheden van PICOS FTF.
Eenvoudig invoeren van elementen, zoals raamvarianten. vliesgevels, deuren, al dan niet vleugeloverdekkend, hefschuifpuien, PASK-elementen , driehoekige-/ronde ramen, modelpuien. Gebruikmakend van de aanwezige bibliotheek en het eenvoudig aanleggen van een eigen bibliotheek.
Kozijnstaten per project, alle beschikbare profielserie's zijn te combineren in 1 project, deelopdrachtverwerking, calculatie per project of per deelopdracht met leverancierskorting per profielserie / per materiaalgroep of verhoogd met TZ, stuksprijzen, bestellijsten glas, panelen, profielen, accessoires:

PICOS FTF heeft een export functie naar CAD, waardoor het gebruik van X-refs in he CAD programma eenvoudiger is.

PICOS FTF heeft mogelijkheden om details te koppelen aan kozijnen, bij aanpassingen van bv.glasdikte, glaslatberekening worden deze details automatisch getekend.
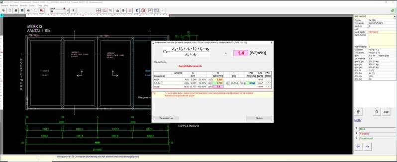
Tijdens het invoeren het berekenen van de Uw-waarde of de benodigde statische waarde van verticale en horizontale profielen:
Aanzichten en doorsnedes, doorsnedes worden automatisch getekend met de juiste glaslatten, rubberdichtingen, export naar CAD in DXF formaat, bouwkundige aansluitingen uit CAD eenvoudig toepassen per project:
PICOS FTF heeft mogelijkheden om details te koppelen aan kozijnen, bij aanpassingen van bv.glasdikte, glaslatberekening worden deze details automatisch getekend.
Zaagstaten per profiel met staaflengtes, variabele staaflengtes per profiel, zaaghoeken en reststukken per staaflengte, export data naar PBC (Profielbewerkingscentrum), bestellijsten profielen en accessoires,
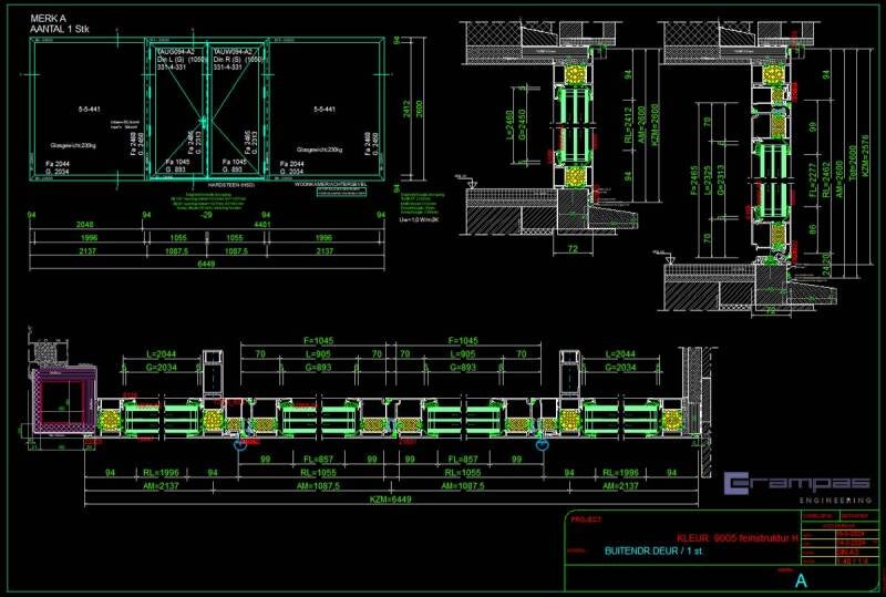
Hieronder de invoer van een gerealiseerd project in Maastricht, invoer ziet er zo uit en het deurkozijn staat eronder vermeld.


Het resultaat van het ingevoerde project:

PICOS FTF zorgt voor een naadloze overgang van calculatie- naar opdrachtfase, zie ook onze uitgevoerde projectvoorbeelden.
Bovenstaande printscreens zijn slechts een kleine greep uit de mogelijkheden van PICOS FTF.
PICOS FTF software is snel te leren en geeft hierdoor ook zeer snel resultaat. Voor het gebruik van de PICOS FTF software is een training verplicht. Deze training wordt online gegeven.
Crampas Engineering+PICOS FTF : lift mee op onze kennis en ervaring.
Wenst u meer info of zijn er vragen, vul onderstaande velden in en wij zorgen dat u zo snel mogelijk antwoord krijgt.